Promociones en curso
Zona Mezquita
- 25 Viviendas
- Locales comerciales
Localización: Mezquita (XÀTIVA)
Area de superficie: Viviendas desde los 105m2 construidos
Dormitorios: 3/2 baños
Garaje: Disponible
Información y venta: info@aurahouse.es
EXTRAS Y ACABADOS
Cada uno de nuestros clientes podrá personalizar su vivienda con la elección de materiales durante la construcción.
Vivienda Tipo A
Superficie construida: 107,138m2
Superficie útil: 88,375 m2
Vestíbulo: 3,29 m2
Pasillo: 5,09 m2
Salón / Comedor: 25,08 m2
Dormitorio 1: 12,04 m2
Dormitorio 2: 9,73 m2
Dormitorio 3: 9,73 m2
Baño 1: 4,94 m2
Baño 2: 4.67 m2
Cocina – Lavadero: 9,57 m2
Tendedero: 2,04/2= 1,02 m2
Terraza: 6,43/2= 3,215 m2
Vivienda Tipo B
Superficie construida: 107,80m2
Superficie útil: 88,98 m2
Vestíbulo: 4,03 m2
Pasillo: 5,13 m2
Salón / Comedor: 25,08 m2
Dormitorio 1: 11,92 m2
Dormitorio 2: 9,73 m2
Dormitorio 3: 9,68 m2
Baño 1: 4,94 m2
Baño 2: 4.67 m2
Cocina – Lavadero: 9,57 m2
Tendedero: 2,04/2= 1,02 m2
Terraza: 6,43/2= 3,21 m2
Vivienda Tipo C
Superficie construida: 104,45 m2
Superficie útil: 87,29 m2
Vestíbulo: 4,03 m2
Pasillo: 5,13 m2
Salón / Comedor: 22,65 m2
Dormitorio 1: 12,16 m2
Dormitorio 2: 9,73 m2
Dormitorio 3: 9,68 m2
Baño 1: 5,03 m2
Baño 2: 4.67 m2
Cocina – Lavadero: 11,08 m2
Tendedero: 2,16/2= 1,08 m2
Terraza: 4,10/2= 2,05 m2
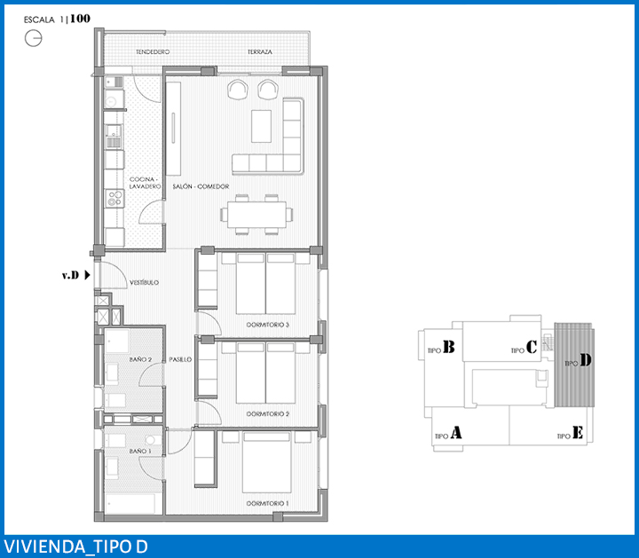
Vivienda Tipo D
Superficie construida: 106,57 m2
Superficie útil: 88,60 m2
Vestíbulo: 4,03 m2
Pasillo: 5,13 m2
Salón / Comedor: 25,20 m2
Dormitorio 1: 11,92 m2
Dormitorio 2: 9,73 m2
Dormitorio 3: 9,68 m2
Baño 1: 4,94 m2
Baño 2: 4.67 m2
Cocina – Lavadero: 9,56 m2
Tendedero: 2,12/2= 1,06 m2
Terraza: 5,36/2= 2,68 m2
Vivienda Tipo E
Superficie construida: 105,63 m2
Superficie útil: 87,99 m2
Vestíbulo: 3,29 m2
Pasillo: 5,13 m2
Salón / Comedor: 25,20 m2
Dormitorio 1: 12,01 m2
Dormitorio 2: 9,73 m2
Dormitorio 3: 9,73 m2
Baño 1: 4,94 m2
Baño 2: 4,67 m2
Cocina – Lavadero: 9,57 m2
Tendedero: 2,10/2= 1,05 m2
Terraza: 5,35/2= 2,67 m2




