Promociones en curso

REST&LIVE PALASIET II-XÀTIVA

Localización: Sector Palasiet (XÀTIVA)

Area de superficie: Viviendas de 2 y 3 dormitorios

Garaje: Disponible

Información y venta: info@aurahouse.es

NOTA

Los datos de esta documentación deben considerarse como orientativos. Hasta la ejecución de la obras podrán sufrir pequeñas modificaciones por exigencias de orden técnico, jurídico o comercial.

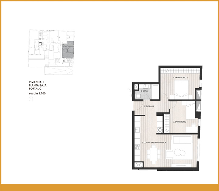
Vivienda 1 -Pb-PortalC

Superficies útiles totales: 61,20 m2

Superficie construida

computable: 71,01m2

 

Entrada: 5,11 m2

Cocina / Salón / Comedor: 28,19 m2

Dormitorio 1: 10,82 m2

Dormitorio 2: 13,22 m2

Baño: 3,81 m2

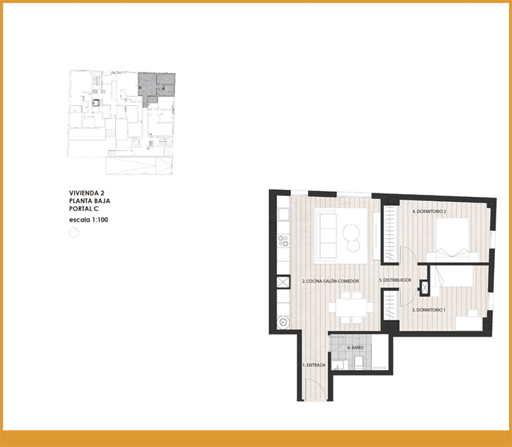
Vivienda 2 -Pb-PortalC

Superficies útiles totales: 62,05 m2

Superficie construida

computable:72,85m2

Entrada: 3,66m2

Cocina / Salón / Comedor: 28,02 m2

Dormitorio 1: 10,96 m2

Dormitorio 2: 13,14 m2

Distribuidor: 2 m2

Baño: 4,27 m2

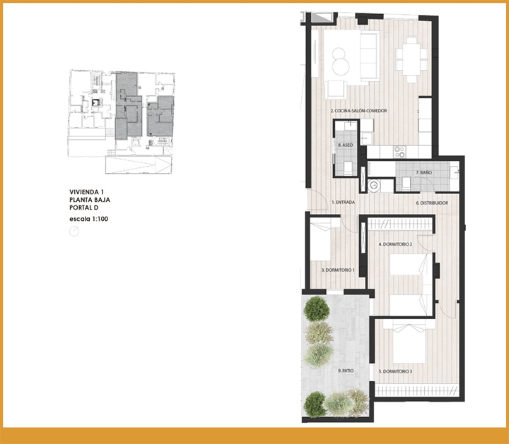
Vivienda 1 -PB-Portal D

Superficies útiles totales:  101,69m2

Superficies útiles comp.: 84,91 m2

Sup. construida

computable: 101,65m2

 

Entrada: 6,32 m²

Cocina – salón  comedor: 29,93 m²

Dormitorio 1: 7,33 m²

Dormitorio 2: 12,79 m²

Dormitorio 3: 14,36 m²

Distribuidor: 9,25 m²

Baño: 4,93 m²

Aseo: 2,52 m²

 
Patio: 16,72 m²
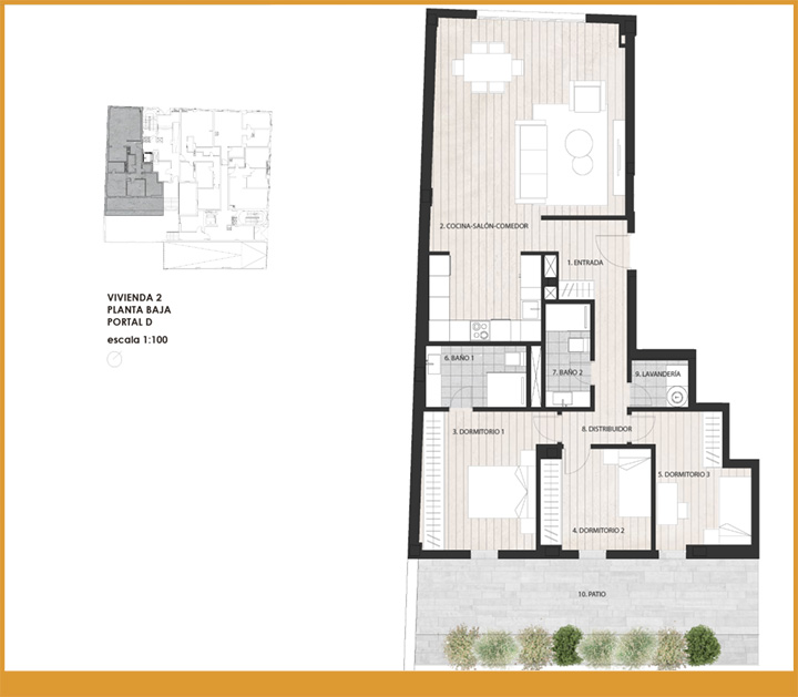
Vivienda 2 -PB-Portal D

Superficies útiles totales: 118,91 m2

Superficies útiles comp.: 97,29 m2

Sup. construida

computable: 115,38m2

Entrada: 5,57 m².

Cocina/salón/comedor: 42,32 m².

Dormitorio 1: 13,98 m².

Dormitorio 2: 29,12 m².

Dormitorio 3: 10,18 m².

Baño 1: 15,17 m².

Baño 2: 23,85 m².

Distribuidor: 4,87 m².

Lavadora: 2,23 m².

Patio: 21,62 m²

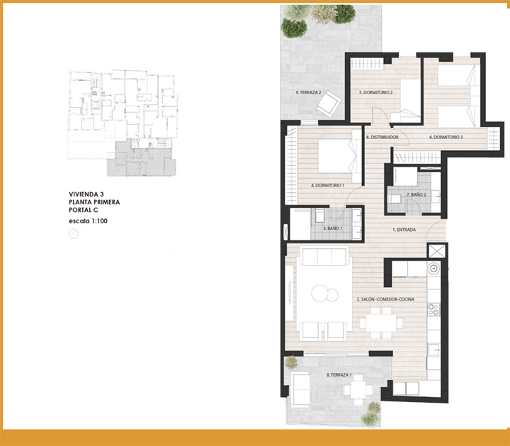
Vivienda 3 -P1-Portal C

Sup. útiles totales: 111,38 m

Sup. útiles comp.: 90,41 m2

Sup. construida

computable: 117,57m2

Entrada: 4,50 m²

Cocina-Salón-Comedor: 27,55 m²

Baño 1: 4,77 m²

Dormitorio 1: 12,46 m²

Dormitorio 2: 9,23 m²

Dormitorio 3: 14,43 m²

Baño: 4,56 m²

Distribuidor: 4,11 m²

Terraza 1: 13,66 m²

Terraza 2: 20,97 m²

Vivienda 4 -P1-Portal C

Sup. útiles totales: 103,70 m

Sup. útiles comp.: 103,70 m2

Sup. construida

computable: 119,48m2

Entrada: 3,82 m²

Cocina-Salón-Comedor: 34,32 m²

Distribuidor: 5,01 m²

Dormitorio 1: 16,49 m²

Baño 1: 4,71 m²

Dormitorio 2: 10,62 m²

Dormitorio 3: 10,62 m²

Baño 2: 4,80 y 2 m²

Terraza: 13,29 m²

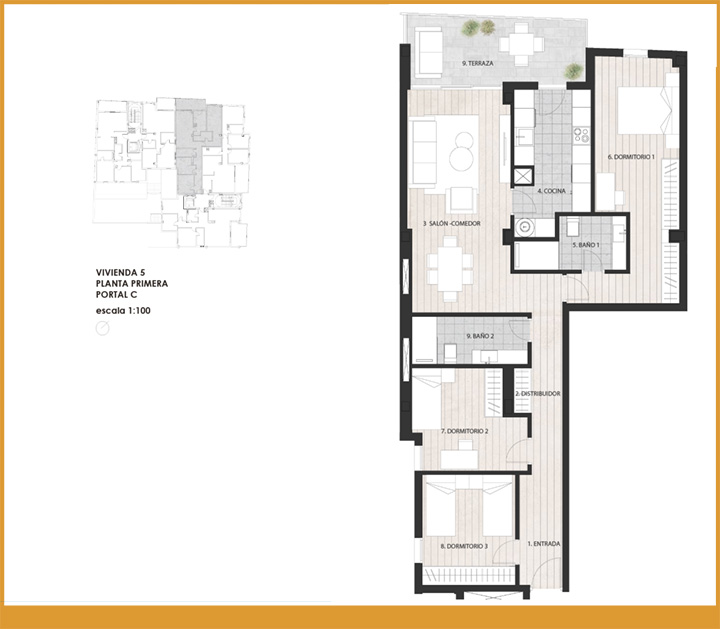
Vivienda 5 -P1-Portal C

Superficies útiles totales: 109,52 m2

Superficies útiles comp.: 104,58 m2

Sup.  construida

computable: 120,75 m2

*Sup. útil computable: la terraza

1 se computan 6,68 m²

 

Entrada: 4,90 m²

Distribuidor: 5,95 m²

Salón comedor: 25,14 m²

Cocina: 10,27 m²

Baño 1: 5,02 m²

Dormitorio 1: 19,85 m²

Dormitorio 2: 10,56 m² D

Dormitorio 3: 10,56 m²

Baño 2: 5,65 m²

Terraza: 11,62 m²

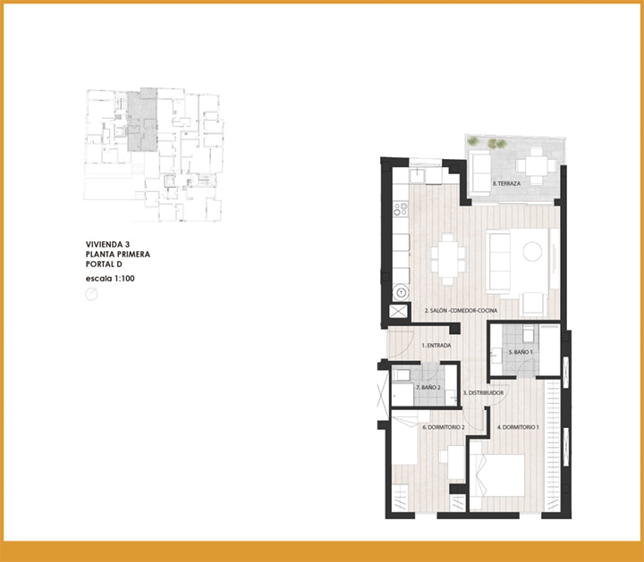
Vivienda 3 -P1-Portal D

Superficies útiles totales: 78,46 m2

Superficies útiles comp.: 70,89 m2

Sup. construida

computable: 83,51m2

*Sup. útil

computable: la terraza

se computan 4,56 m²

 

Entrada: 3,17 m²

Cocina-Salón-Somedor: 27,77 m²

Distribuidor: 2,41 m²

Dormitorio 1: 14,01 m²

Baño 1: 4,72 m²

Dormitorio 2: 10,25 m²

Baño 2: 3,50 m²

Terraza: 7,57 m²

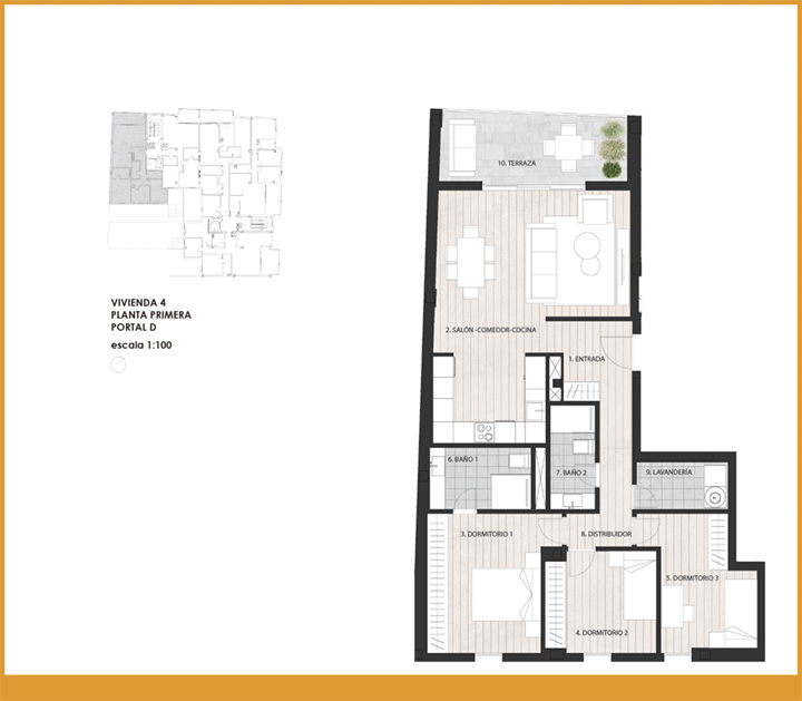
Vivienda 4 -P1-Portal D

Superficies útiles totales: 98,05 m2

Superficies útiles comp.: 98,05 m2

Sup. construida

computable: 117,17 m2

Entrada: 5,57 m²

Cocina-salón-comedor: 31,52 m²

Dormitorio 1: 13,73 m²

Dormitorio 2: 9,12 m²

Dormitorio 3: 10,18 m²

Baño 1: 5,17 m²

Baño 2: 3,85 m²

Distribuidor: 4,87 m²

Lavadora: 3,56 m²

Terraza: 10,48 m²

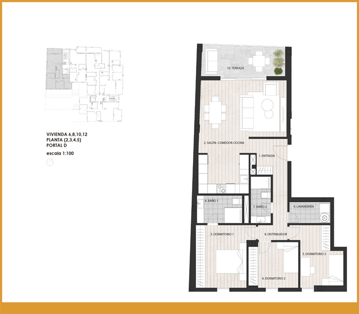
Vivienda 6,9,12,15 -P(2,3,4,5)-Portal C

Superficies útiles totales: 95,27 m2

Superficies útiles comp.: 90,41 m2

Sup. construida

computable: 117,57 m2

Entrada: 4,50 m²

Cocina-salón-comedor: 27,55 m²

Baño 1: 4,77 m²

Dormitorio 1: 12,46 m²

Dormitorio 2: 9,23 m²

Dormitorio 3: 14,43 m²

Baño 2: 4,56 m²

Distribuidor: 4,11 m²

Terraza 1: 13,66 m²

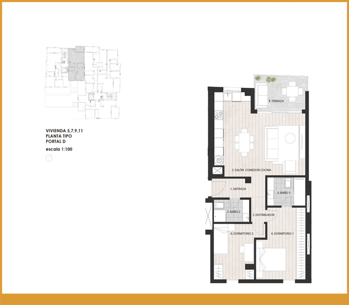
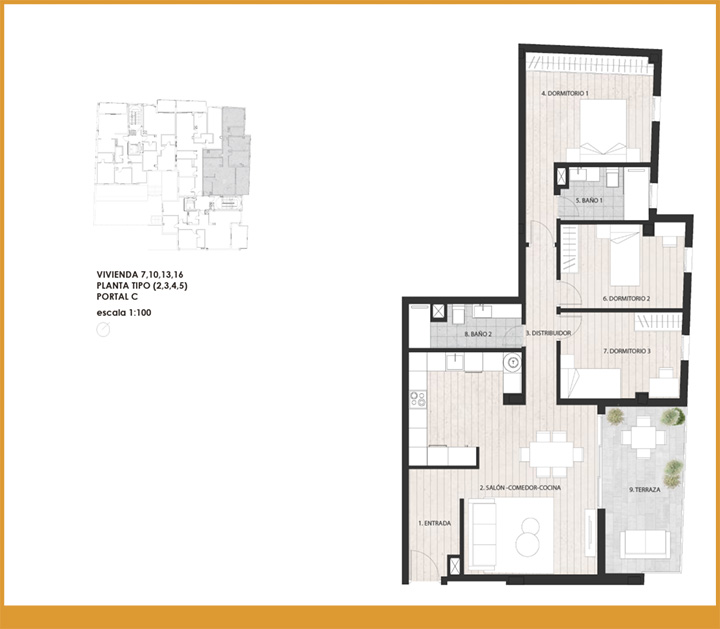
Vivienda 7,10,13,16 -P(2,3,4,5)-Portal C

Superficies útiles totales: 103,70 m2

Superficies útiles comp.: 03,70 m2

Supe. construida

computable: 119,48 m2

Entrada: 3,82 m²

Cocina-salón-comedor: 34,32 m²

Distribuidor: 5,01 m²

Dormitorio 1: 16,49 m²

Baño 1: 4,71 m²

Dormitorio 2: 10,62 m²

Dormitorio 3: 10,62 m²

Baño 2: 4,82 m²

Terraza: 13,29 m²

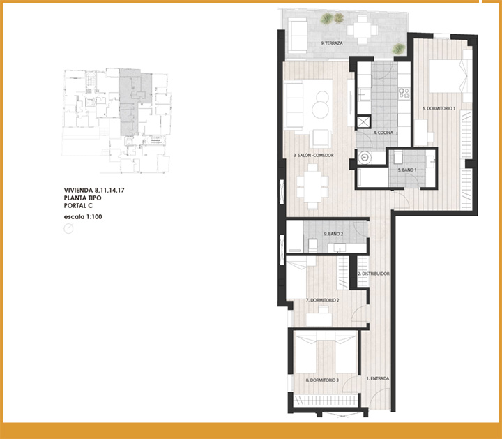
Vivienda 8,11,14,17 -P(2,3,4,5)-Portal C

Superficies útiles totales: 109,52 m2

Superficies útiles comp.:  104,58 m2

Sup. construida

computable: 120,75 m2

*Sup. útil computable:

la terraza 1 se computan 6,68 m²

Entrada: 4,90 m²

Distribuidor: 5,95 m²

Salón-comedor: 25,14 m²

Cocina: 10,27 m²

Baño 1: 5,02 m²

Dormitorio 1: 19,85 m²

Dormitorio 2: 10,56 m²

Dormitorio 3: 10,56 m²

Baño 2: 5,65 m²

Terraza: 11,62 m²

Vivienda 5,7,9,11 -P(2,3,4,5)-Portal D

Superficies útiles totales: 78,46 m2

Superficies útiles comp.: 70,89 m2

Sup. construida

computable: 83,51 m2

*Sup. útil computable:

la terraza 1 se computan 4,56 m²

Entrada: 3,17 m²

Cocina-salón-comedor: 27,77 m²

Distribuidor: 2,91 m²

Dormitorio 1: 14,01 m²

Baño 1: 4,72 m²

Dormitorio 2: 10,25 m²

Baño 2: 3,50 m²

Terraza: 7,57 m²

Vivienda 6,8,10,12 -P(2,3,4,5)-Portal D

Superficies útiles totales: 98,05 m2

Superficies útiles comp.:  8,05 m2

Sup. construida

computable: 1117,17 m2

Entrada: 5,57 m²

Cocina-salón-comedor: 31,52 m²

Dormitorio 1: 13,73 m²

Dormitorio 2: 9,12 m²

Dormitorio 3: 10,18 m²

Baño 1: 5,17 m²

Baño 2: 3,85 m²

Distribuidor: 4,87 m²

Lavadora: 3,52 m²

Terraza: 10,48 m²

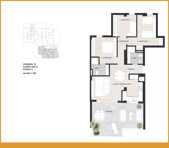
Vivienda 18 -P(2,3,4,5)-Portal C

Superficies útiles totales: 105,94 m2

Superficies útiles comp.: 77,25 m2

Sup. construida

computable: 91,66 m2

Entrada: 3,81 m²

Salón-comedor: 19,13 m²

Baño 1: 4,32 m²

Dormitorio 1: 11,40 m²

Dormitorio 2: 9,25 m²

Dormitorio 3: 13,76 m²

Baño 2: 4,16 m²

Distribuidor: 3,81 m²

Terraza: 28,69 m²

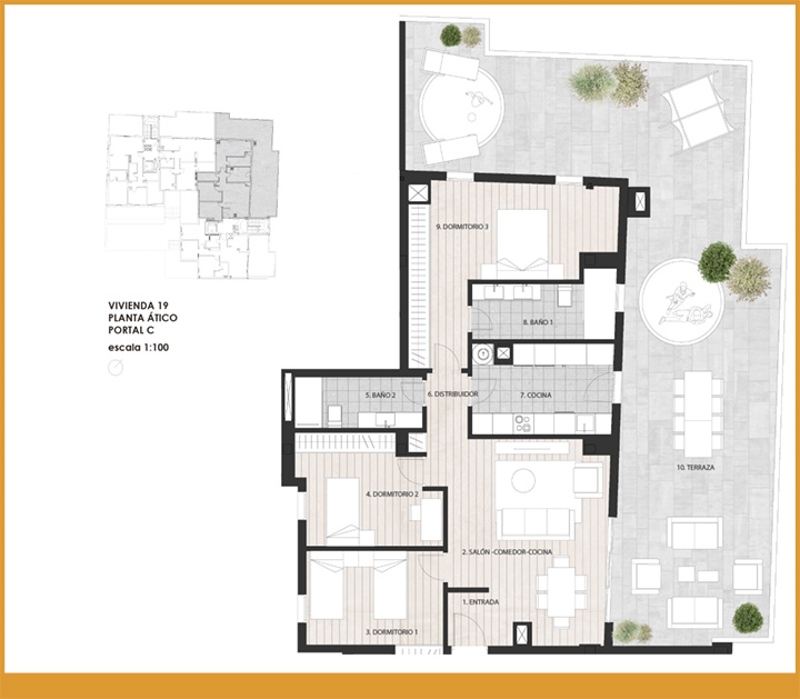
Vivienda 19 – P. Ático – Portal C

Superficies útiles totales: 188,74 m2

Superficies útiles comp.:  96,26 m2

Sup. construida

computable: 1114,55 m2

Entrada: 2,93 m²

Salón-comedor: 23,77 m²

Dormitorio 1: 11,59 m²

Dormitorio 2: 11,89 m²

Baño 2: 5,42 m²

Distribuidor: 3,40 m²

Cocina: 10,28 m²

Baño 1: 7,02 m²

Dormitorio 3: 19,96 m²

Terraza: 92,48 m²

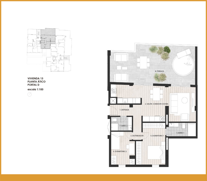
Vivienda 13 – P. Ático – Portal D

Superficies útiles totales: 106,02 m2

Superficies útiles comp.: 67,69 m2

Sup. construida

computable: 81,45 m2

 

Entrada: 4,31 m²

Cocina-salón-comedor: 29,54 m²

Distribuidor: 2,52 m²

Dormitorio 1: 13,75 m²

Baño 1: 4,83 m²

Dormitorio 2: 9,20 m²

Baño 2: 3,54 m²

Terraza: 38,33 m²

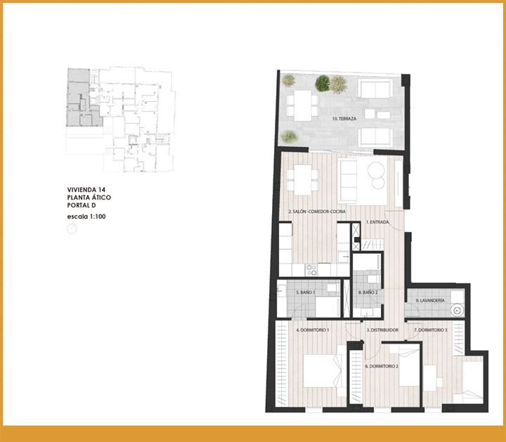
Vivienda 14 – P. Ático – Portal D

Superficies útiles totales: 98,68 m2

Superficies útiles comp.:  79,28 m2

Sup.  construida

computable: 96,19 m2

 

Entrada: 2,57 m²

Cocina-salón-comedor: 26,23 m²

Distribuidor: 4,87 m²

Dormitorio 1: 13,73 m²

Baño 1: 5,17 m²

Dormitorio 2: 9,12 m²

Dormitorio 3: 10,18 m²

Baño 2: 3,85 m²

Lavadora: 3,56 m²

Terraza: 19,40 m²

Superficies que se presentan en este plano y en su leyenda son aproximadas, las definitivas serán las que resulten de la ejecución de la obra. Se hace entrega de la vivienda solo con el mobiliario y electrodomésticos que constan en la memoria de calidades. Armarios no incluidos. Este plano queda sujeto a posibles modificaciones de carácter técnico legal o de ejecución.

Scroll al inicio