Promociones en curso
REST&LIVE PALASIET-XÀTIVA
- 62 Viviendas de renta libre
- Locales comerciales
- Garajes
Localización: Sector Palasiet (XÀTIVA)
Area de superficie: Viviendas de 2, 3 y 4 dormitorios
Garaje: Disponible
Información y venta: info@aurahouse.es
Planos de plantas
Planta 1ª
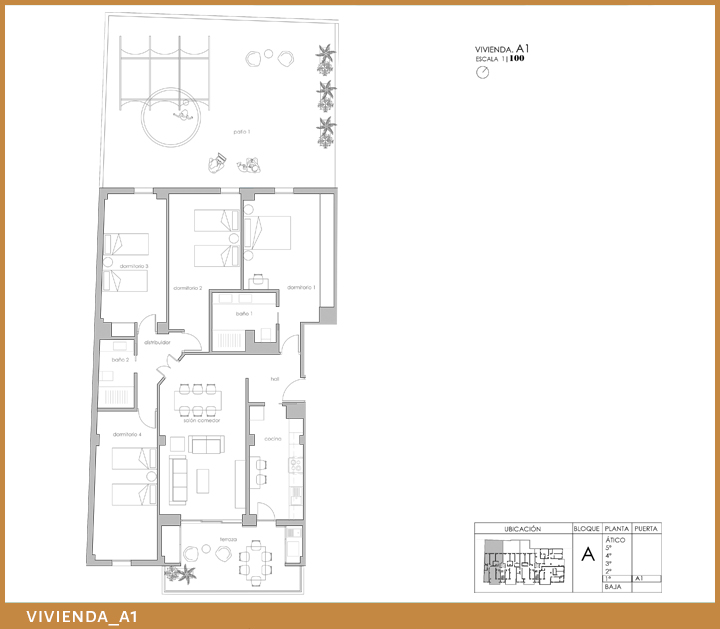
Vivienda A1
Superficie construida: 155,38 m2
Superficie útil: 134,72 m2
Terraza: 12,87 m2
Hall: 4,66 m2
Distribuidor: 4,32 m2
Salón: 24,51 m2
Dormitorio 1: 19,34 m2
Dormitorio 2: 16,24 m2
Dormitorio 3: 15,47 m2
Dormitorio 4: 16,56 m2
Baño1: 6,05 m2
Baño2: 4,33 m2
Cocina: 10,37 m2
Terraza: 12,87 m2
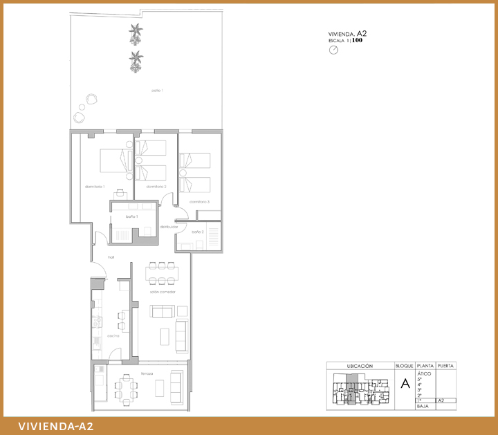
Vivienda A2
Superficie construida: 128,47 m2
Superficie útil: 112,59 m2
Terraza: 15,85 m2
Distribuidor: 2,37 m2
Salón: 24,09 m2
Dormitorio 1: 19,65 m2
Dormitorio 2: 10,77 m2
Dormitorio 3: 13,66 m2
Baño1: 5,98 m2
Baño2: 4,77 m2
Cocina: 10,66 m2
Terraza: 15,85 m2
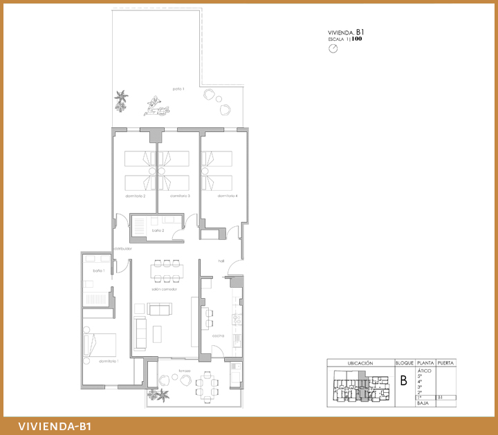
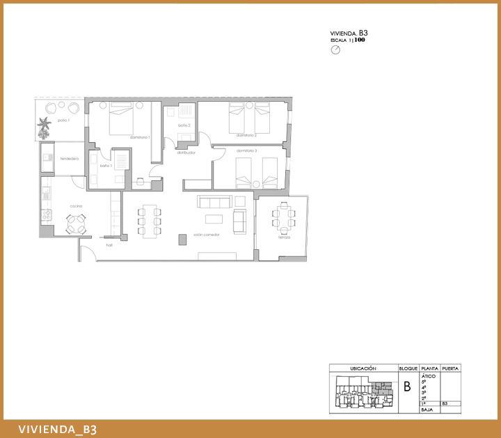
Vivienda B1
Superficie construida: 151,16 m2
Superficie útil: 133,22 m2
Terraza: 12,62 m2
Hall: 6,38 m2
Distribuidor: 2,09 m2
Salón: 29,41 m2
Dormitorio 1: 17,79 m2
Dormitorio 2: 13,48 m2
Dormitorio 3: 13,14 m2
Dormitorio 4: 16,38 m2
Baño1: 5,49 m2
Baño2: 4,57 m2
Cocina: 11,42 m2
Terraza: 12,62 m2
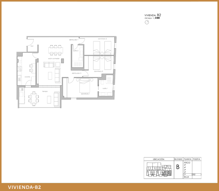
Vivienda B2
Superficie construida: 123,71 m2
Superficie útil: 106,93 m2
Terraza: 15,84 m2
Hall: 2,87 m2
Distribuidor1: 1,08 m2
Distribuidor2: 1,49 m2
Salón: 29,09 m2
Dormitorio 1: 13,13 m2
Dormitorio 2: 11,29 m2
Dormitorio 3: 11,02 m2
Baño1: 5,06 m2
Baño2: 4,81 m2
Cocina: 11,25 m2
Terraza: 15,84 m2
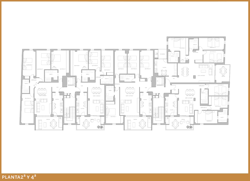
Planta 2ª - 4ª
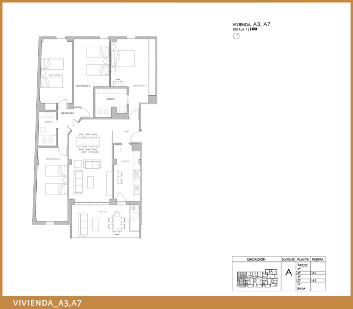
Vivienda A3-A7
Superficie construida: 158,98 m2
Superficie útil: 137,77 m2
Terraza: 15,85 m2
Hall: 4,66 m2
Distribuidor: 4,33 m2
Salón: 24,59 m2
Dormitorio 1: 19,34 m2
Dormitorio 2: 16,23 m2
Dormitorio 3: 15,47 m2
Dormitorio 4: 16,53 m2
Baño1: 6,05 m2
Baño2: 4,33 m2
Cocina: 10,39 m2
Terraza: 15,85 m2
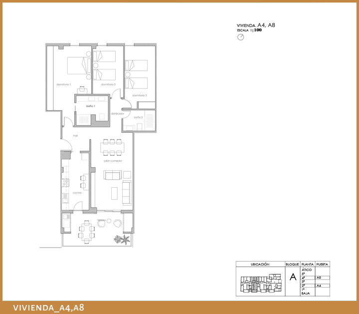
Vivienda A4-A8
Superficie construida: 124,87 m2
Superficie útil: 109,57 m2
Terraza: 12,85 m2
Hall: 4,79 m2
Distribuidor: 2,37 m2
Salón: 24,07 m2
Dormitorio 1: 19,65 m2
Dormitorio 2: 10,77 m2
Dormitorio 3: 13,66 m2
Baño1: 5,98 m2
Baño2: 4,77 m2
Cocina: 10,66 m2
Terraza: 12,85 m2
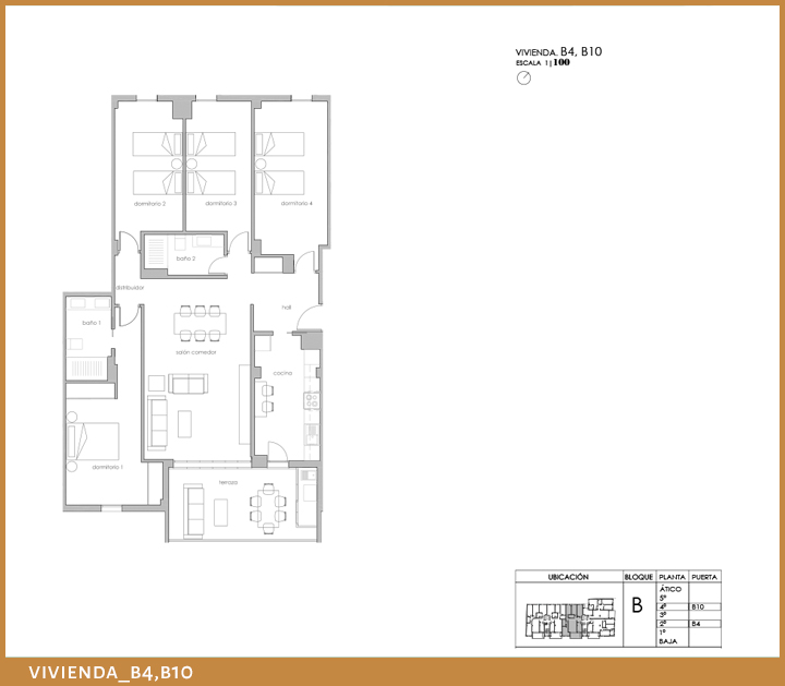
Vivienda B4-B10
Superficie construida: 154,76 m2
Superficie útil: 136,48 m2
Terraza: 15,85 m2
Hall: 6,38 m2
Distribuidor: 2,09 m2
Salón: 29,41 m2
Dormitorio 1: 17,8 m2
Dormitorio 2: 13,48 m2
Dormitorio 3: 13,14 m2
Dormitorio 4: 16,38 m2
Baño1: 5,49 m2
Baño2: 4,57 m2
Cocina: 11,44 m2
Terraza: 15,85 m2
Vivienda B5-B11
Superficie construida: 120,11 m2
Superficie útil: 104,15 m2
Terraza: 13,06 m2
Hall: 2,87 m2
Distribuidor1: 1,08 m2
Distribuidor2: 1,49 m2
Salón: 29,09 m2
Dormitorio 1: 13,13 m2
Dormitorio 2: 11,29 m2
Dormitorio 3: 11,02 m2
Baño1: 5,06 m2
Baño2: 4,81 m2
Cocina: 11,25 m2
Terraza: 13,06 m2
Planta 3ª - 5ª
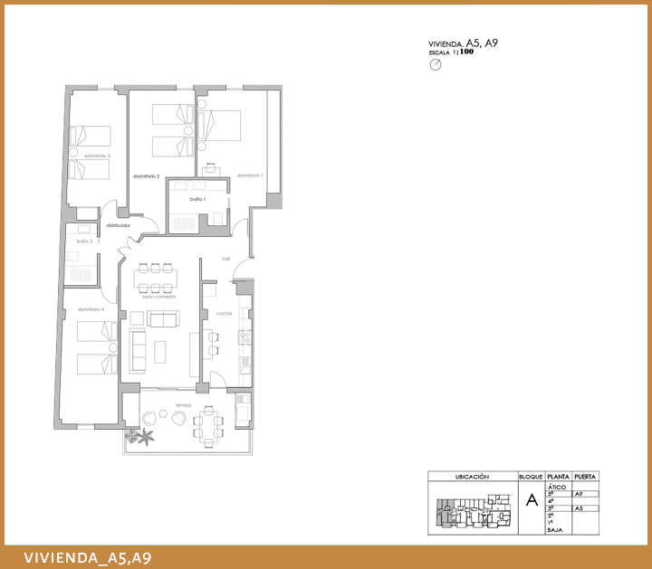
Vivienda A5-A9
Superficie construida: 155,38 m2
Superficie útil: 134,72 m2
Terraza: 12,87 m2
Hall: 4,66 m2
Distribuidor: 4,32 m2
Salón: 24,51 m2
Dormitorio 1: 19,34 m2
Dormitorio 2: 16,24 m2
Dormitorio 3: 15,47 m2
Dormitorio 4: 16,56 m2
Baño1: 6,05 m2
Baño2: 4,33 m2
Cocina: 10,37 m2
Terraza: 12,87 m2
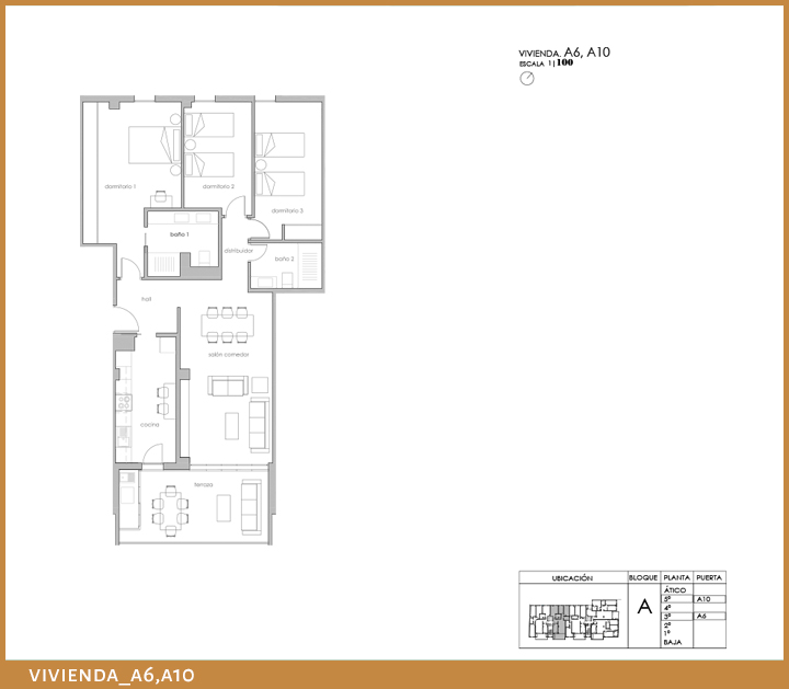
Vivienda A6-A10
Superficie construida: 128,47 m2
Superficie útil: 112,59 m2
Terraza: 15,85 m2
Hall: 4,79 m2
Distribuidor: 2,37 m2
Salón: 24,09 m2
Dormitorio 1: 19,65 m2
Dormitorio 2: 10,77 m2
Dormitorio 3: 13,66 m2
Baño1: 5,98 m2
Baño2: 4,77 m2
Cocina: 10,66 m2
Terraza: 15,85 m2
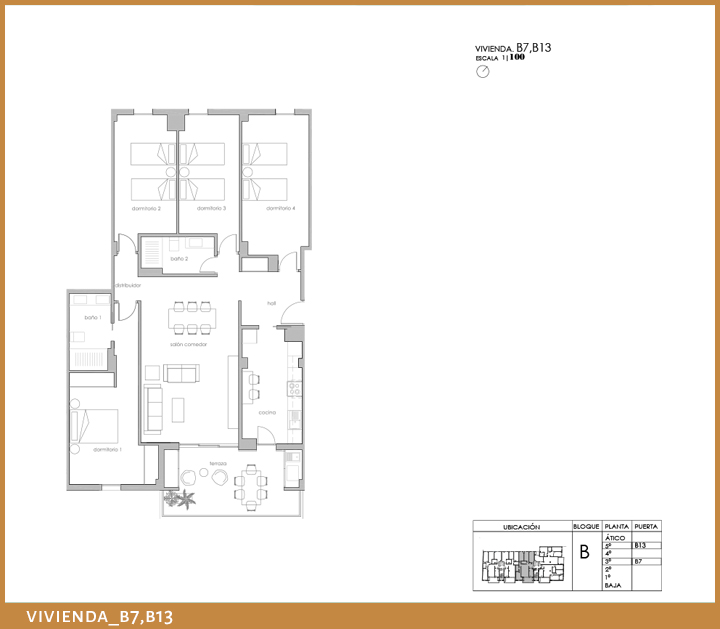
Vivienda B7-B13
Superficie construida: 151,16 m2
Superficie útil: 133,23 m2
Terraza: 12,62 m2
Hall: 6,38 m2
Distribuidor1: 2,09 m2
Salón: 29,41 m2
Dormitorio 1: 17,8 m2
Dormitorio 2: 13,48 m2
Dormitorio 3: 13,14 m2
Dormitorio 4: 16,83 m2
Baño1: 5,49 m2
Baño2: 4,57 m2
Cocina: 11,42 m2
Terraza: 12,62 m2
Vivienda B8-B14
Superficie construida: 123,71 m2
Superficie útil: 106,93 m2
Terraza: 15,84 m2
Hall: 2,87 m2
Distribuidor1: 1,08 m2
Distribuidor2: 1,49 m2
Salón: 29,09 m2
Dormitorio 1: 13,13 m2
Dormitorio 2: 11,29 m2
Dormitorio 3: 11,02 m2
Baño1: 5,06 m2
Baño2: 4,81 m2
Cocina: 11,25 m2
Terraza: 15,84 m2
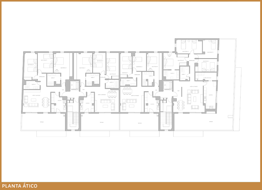
Planta Ático
Vivienda A11-Ático
Superficie construida: 119,48 m2
Superficie útil: 102,49 m2
Terraza: 29,09 m2
Hall: 4,59 m2
Distribuidor: 4,04 m2
Salón: 26,5 m2
Dormitorio 1: 19,36 m2
Dormitorio 2: 12,6 m2
Dormitorio 3: 14,24 m2
Baño1: 6,05 m2
Baño2: 5,06 m2
Cocina: 10,05 m2
Terraza: 29,09 m2
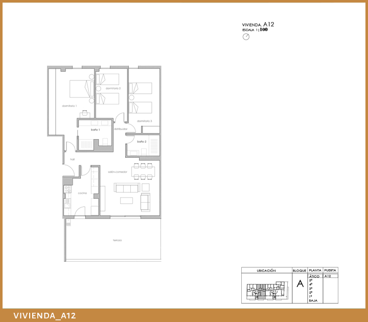
Vivienda A12-Ático
Superficie construida: 108,48 m2
Superficie útil: 94,51 m2
Terraza: 25,72 m2
Hall: 4,44 m2
Distribuidor: 2,37 m2
Salón: 23,69 m2
Dormitorio 1: 19,69 m2
Dormitorio 2: 10,77 m2
Dormitorio 3: 13,56 m2
Baño1: 5,98 m2
Baño2: 4,61 m2
Cocina: 9,42 m2
Terraza: 25,72 m2
Vivienda B16-Ático
Superficie construida: 105,19 m2
Superficie útil: 92,3 m2
Terraza: 25,91 m2
Hall: 4,31 m2
Distribuidor: 3,84 m2
Salón: 24,96 m2
Dormitorio 1: 11,85 m2
Dormitorio 2: 9,91 m2
Dormitorio 3: 15,4 m2
Baño1: 4,74 m2
Baño2: 6,16 m2
Cocina: 11,13 m2
Terraza: 25,91 m2
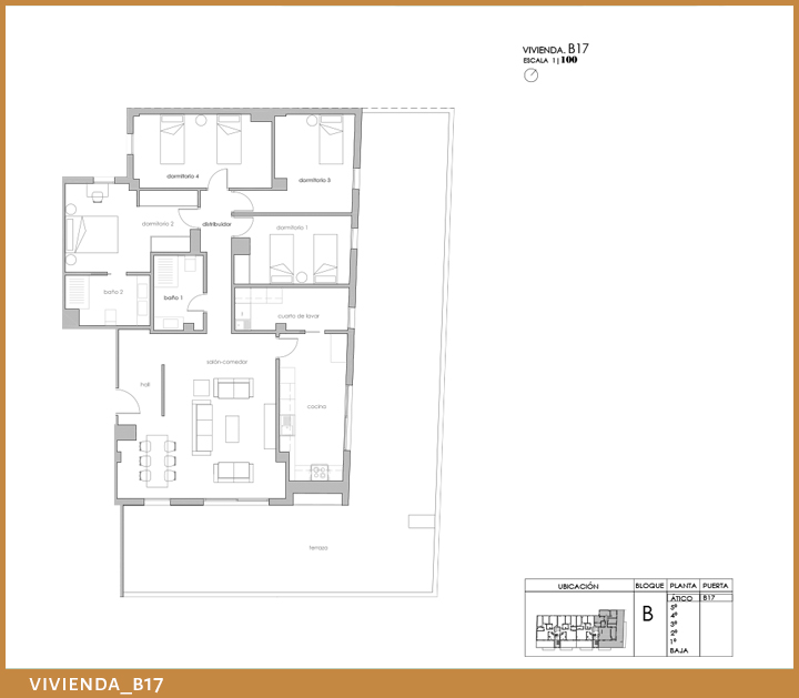
Vivienda B17-Ático
Superficie construida: 148,82 m2
Superficie útil: 127,94 m2
Terraza: 88,39 m2
Hall: 3,91 m2
Distribuidor1: 5,74 m2
Salón: 33,99 m2
Dormitorio 1: 11,2 m2
Dormitorio 2: 14,62 m2
Dormitorio 3: 12,36 m2
Dormitorio 4: 14,49 m2
Baño1: 5,22 m2
Baño2: 5,85 m2
Cocina: 13,64 m2
Cuarto de lavar: 6,92 m2
Terraza: 88,39 m2





